Vorüberlegung:
Welche Module könnten bei Fahrtreffen sinnvolle Ergänzung darstellen und gleichzeitig beim Bau eine neue kleine Herausforderung sein.
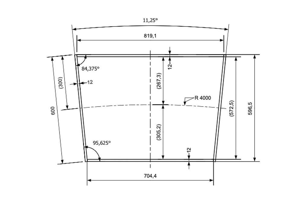
Die Wahl fiel auf zwei schlanke Kurven mit 11,25 Grad und r=4000mm ( siehe Zg).
Motto:
Eine Kurve mit einem beschrankten Bahnübergang und dem neuen Postenhäuschen aus dem Spur Null Magazin und die andere mit einer Torfgrube mit Torfabbau.
Zweck der Kurven:
Die Möglichkeit zu schaffen einen Streckenast im Verlauf leicht zu verschwenken.
Zuerst wurde eine entsprechende Zeichnung mit allen zum Bau erforderlichen Maßen erstellt, siehe Anlage.
Der Rahmen wurde aus 12mm starken NSOW-Kopfbrettern ( hier 1S600 ) und ebenfalls 12mm starken Seitenteilen aus Pappelsperrholz gefertigt. Trassenbrett und der zugehörige Unterbau wurde nach Schablone ebenfalls aus Pappelsperrholz hergestellt.
Nach Abschluss der Holz- und Spachtel- Schleifarbeiten wurde die Unter/Innenseite weiß und der äußere Rahmen braun gestrichen. Es wurden Flexgleise der Firma Lenz verbaut und die Elektrik nach den Vorgaben aus unserem Kursbuch installiert.
Die beiden Kurven wurden in diesem Baustadium “Sperrholzwüste“ schon während eines Fahrtreffens eingesetzt und haben sich bewährt.
Euer Hajo

Die Idee und die Planung.

Der erste Rahmen für die neuen Module.

Gekaufte ‚NSOW‘-Modulköpfe und selbst angefertigte Seitenbretter

Erste Stellprobe mit ‚Gleisbrett‘.

Die Gleisverlegung startet.

Erst mal alles dicht machen :-).

Fortgeschrittene Stellprobe und Gleiseverlegung

Ich stelle fest, es ist so gelungen, wie ich es mir vorgestellt habe.

Farbe, RAL 8017 ‚Schokobraun‘.

Jetzt sind die Beinhalterungen dran.

Hier die Einzelteile.

Bequeme Beinhalterung.

Sorgfältige Stromversorgung mit ausreichendem Kabel-Querschnitt.

Seitenbretter in meiner Farbe ‚Hajoblau‘.

Bau eines Schtreckenpostens aus dem SNMagazin

Erster Einsatz beim Fahrtreffen.
Idee, Bau, Texte und Fotos: Hajo